歡迎您來到永嘉東宇高中壓閥門有限公司官方網站,我們專注高壓角式截止閥生產與銷售!
咨詢電話:0577-57985797 / 13567725587
產品展示
產品詳情
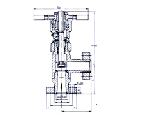
高壓角式截止閥(西高型) 是利用閥瓣控制啟閉的閥門,主要用于介質工作壓力較高而口徑不大的場合。截止閥的主要啟閉件是閥瓣和閥座,閥瓣沿閥座中心線移動,改變閥瓣和閥座之間的距離,既可改變通道截面積,從而控制和截斷流量。為防止滲漏,閥瓣與閥座接觸面均經研磨配合。截止閥的特點是操作可靠,關閉嚴密,易于調節或截斷流量,開啟高度小(一般為喉座直徑的1/4)。但結構復雜,價格較貴,流體阻力大,啟閉緩慢。
高壓角式截止閥(西高型)結構特點
1、閥瓣沒有通孔,介質從閥瓣流入閥門中腔使閥瓣所受介質平衡,啟閉力矩小。
2、升降式閥桿結構,開啟輕便,密封性好。
3、采用F-4復合橡膠密封圈,密封性好,且耐酸堿腐蝕
高壓角式截止閥設計與制造標準
● 設計與制造:GB12233 ● 法蘭尺寸:GB9113 ● 結構長度:GB12221 ● 檢驗與實驗:GB/T13927

J44H型高壓截止閥主要連接與外形尺寸
| 型 號 | 通徑 DN(mm) | 主要連接尺寸 | 外形尺寸 | ||||||||
| L | D | D 1 | M | D 2 | b | Z-фd | L O | H | H 1 | ||
| AJ44H-320 AL44H-320 | 3 | 60 | 70 | 42 | M14×1.5 | 10 | 15 | 3-16 | 100 | 71 | 77 |
| 6 | 60 | 70 | 42 | M14×1.5 | 10 | 15 | 3-16 | 150 | 80 | 94 | |
| J44Y-160 L44Y-160 | 10 | 90 | 95 | 60 | M24×2 | 10 | 20 | 3-18 | 200 | 260 | 275 |
| 15 | 105 | 95 | 60 | M24×2 | 16 | 20 | 3-18 | 200 | 268 | 288 | |
| J44Y-320 L44Y-320 | 10 | 90 | 95 | 60 | M24×2 | 10 | 20 | 3-18 | 200 | 268 | 275 |
| 15 | 105 | 105 | 68 | M33×2 | 17 | 20 | 3-18 | 200 | 268 | 288 | |
| J44Y-160 L44Y-160 | 25 | 120 | 102 | 68 | M33×2 | 28 | 20 | 3-18 | 300 | 225 | 245 |
| 32 | 135 | 115 | 80 | M42×2 | 37 | 22 | 4-18 | 300 | 222 | 248 | |
| 40 | 165 | 165 | 115 | M52×2 | 47 | 28 | 6-26 | 350 | 265 | 300 | |
| 50 | 190 | 165 | 115 | M64×3 | 59 | 32 | 6-26 | 400 | 303 | 345 | |
| J44Y-320 L44Y-320 | 25 | 120 | 115 | 80 | M42×2 | 35 | 22 | 4-18 | 300 | 225 | 245 |
| 32 | 135 | 135 | 95 | M48×2 | 41 | 25 | 4-22 | 300 | 222 | 248 | |
| 40 | 165 | 165 | 115 | M64×3 | 58 | 32 | 6-26 | 350 | 265 | 300 | |
| 50 | 190 | 200 | 145 | M80×3 | 70 | 40 | 6-29 | 400 | 303 | 345 | |
| GJ44H-160 GL44H-160 | 65 | 215 | 200 | 145 | M80×3 | 73 | 40 | 6-29 | 710 | 430 | 490 |
| 80 | 260 | 225 | 170 | M100×3 | 93 | 50 | 6-33 | 810 | 520 | 600 | |
| 100 | 290 | 260 | 195 | M125×4 | 115 | 60 | 6-36 | 850 | 595 | 685 | |
| GJ44H-320 GHJ44H-320 | 65 | 215 | 225 | 170 | M100×3 | 90 | 50 | 6-33 | 710 | 430 | 490 |
| 80 | 260 | 260 | 195 | M125×4 | 112 | 60 | 6-36 | 810 | 520 | 600 | |
| 100 | 290 | 300 | 235 | M155×4 | 130 | 75 | 8-39 | 850 | 595 | 285 | |
相關信息
如果你有任何問題,你想了解的建議及產品,可以隨時聯系我們。期待您的咨詢?
聯系我們/ contact us
在線留言/ message